首页
国内外新闻
佛山新闻
佛山禅城
旅游景点
佛山南海
旅游景点
佛山顺德
寻味顺德
旅游景点
佛山三水
旅游景点
佛山高明
旅游景点
更多服务
关于佛山论坛网
版权声明
联系我们
知识百科
首页
>
国内外新闻
>
佛山新闻
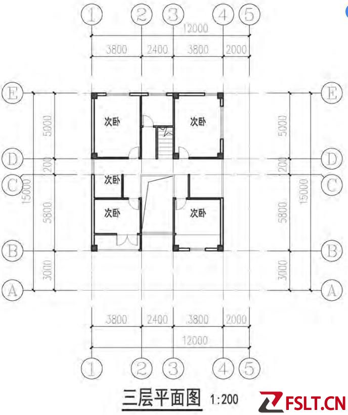
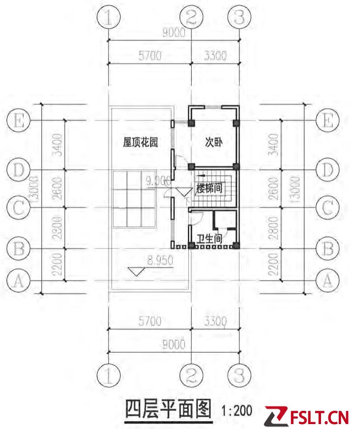
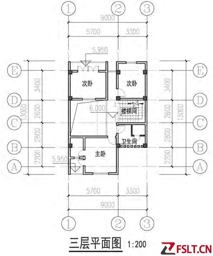
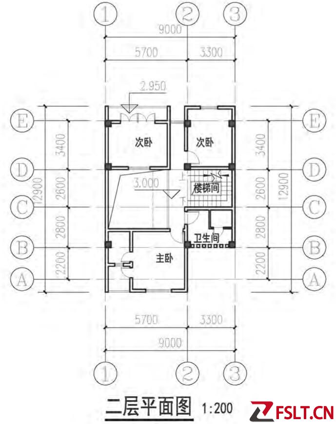
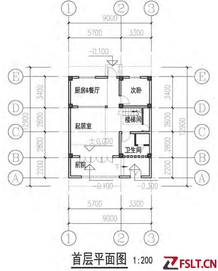
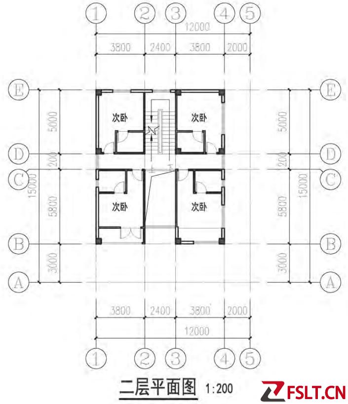
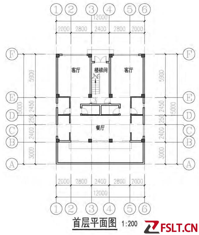
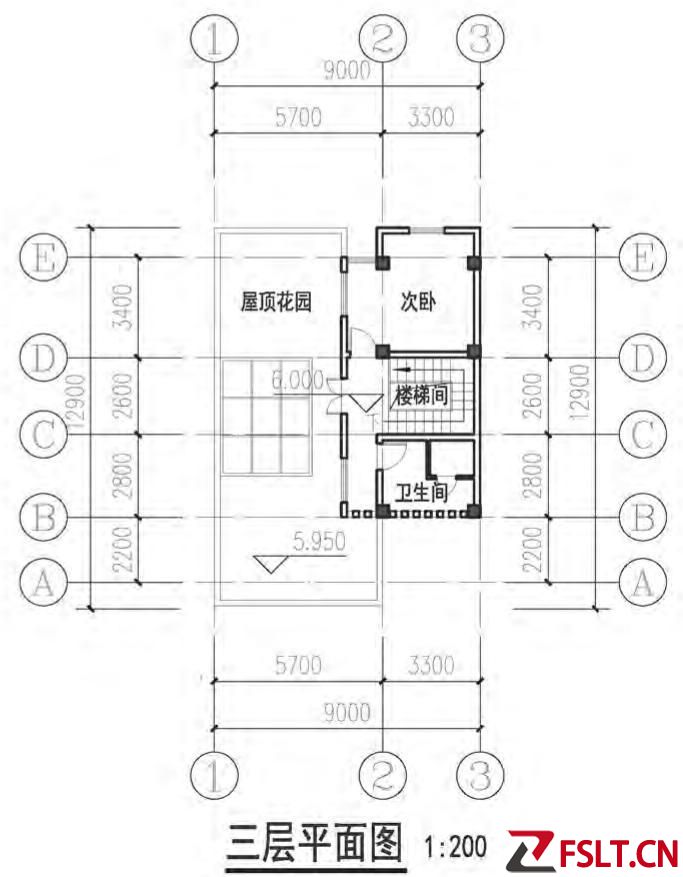
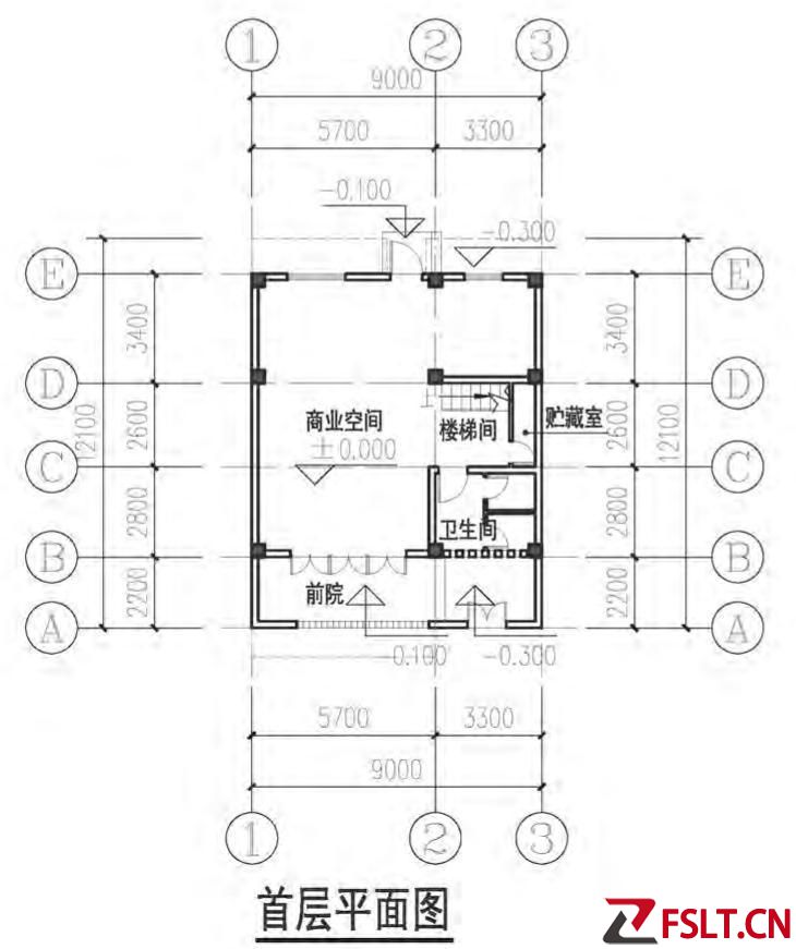
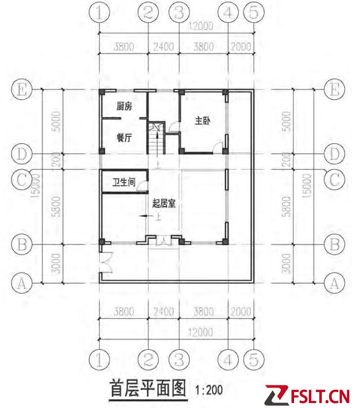
岭南新风貌·广东省农房设计方案图集(第二册)——雷州民系
作者:
更新时间:2023-03-09
点击数:
加入收藏
上一篇:
2017年广东一男子忽然失踪,竟是被人买走替代他人,灌醉后被
下一篇:
新突破!广东医科大学附属医院肾病内科获批国家临床重点专科建设
返回列表
随便看看
佛山传媒携手九江烟南谋划文旅发展思路,促成一批工作成果
“回南天”还要持续多久?广东又“潮”上热搜了!
广东遭20分大逆转!马尚难掩低迷,赵睿18+8,胡明轩6犯离场
【粤政一周】关于高质量发展,广东出台多个重磅文件
广东彩民独揽217注双色球二等奖,仅蓝球号码之差,错失10亿巨奖
佛山市各区现任区委书记和区长
广东一女子检查痔疮时,怀疑被医生强奸,医院:随便你告
有困难,免费来吃饭!禅城这家店,真暖......
音乐剧《咏春》全国巡演广州站开演
解决“椒”虑!佛山驻天堂镇帮扶工作队为当地辣椒拓销路
产品推荐
深挖凤眼果特色IP 走出基层治理新路
¥0
主动清杂物 共织“防蚊网”
¥0
顺德区开展游泳池救生员实操培训
¥0
顺德陈村接连举办多场AI专题培训
¥0
顺德首届开渔节开幕
¥0
账号登录
注册账号
|
忘记密码
社交账号登录