首页
国内外新闻
佛山新闻
佛山禅城
旅游景点
佛山南海
旅游景点
佛山顺德
寻味顺德
旅游景点
佛山三水
旅游景点
佛山高明
旅游景点
更多服务
关于佛山论坛网
版权声明
联系我们
知识百科
首页
>
国内外新闻
>
佛山新闻
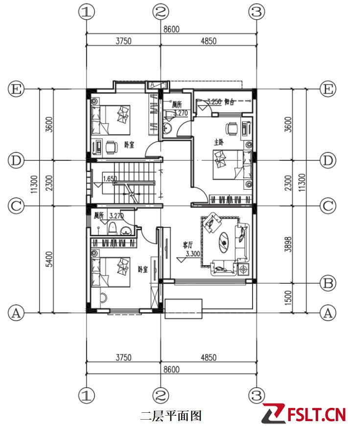
岭南新风貌·广东省农房设计方案图集(第二册)——广府民系
作者:
更新时间:2023-03-03
点击数:
加入收藏
上一篇:
警惕洗钱套路,远离洗钱犯罪
下一篇:
广东在2023年2月份开始找工作是最难时期,要有打包回家的准
返回列表
随便看看
儿媳当街卖淫,公公婆婆望风收钱,丈夫为何不闻不问?
1983年广东挖出无底黑洞,传闻是日本人的宝藏,结果价值比之更高
折上99折!南海首推人才购房券,七镇街38盘参与
金钱真的是万能的吗?广东男子离奇失踪,谁料竟是顶替富商被火化
2023年广东省小升初语文模拟试卷(一)
大海深处建粮仓 看广东发展海洋经济的“减法”“加法”“乘法”
5G智慧灯杆,未来智慧城市的关键入口,万润科技的又一个预期差!
解决“椒”虑!佛山驻天堂镇帮扶工作队为当地辣椒拓销路
@电动自行车驾驶人 生与死的区别,您只差一个它!
广东区划优化思路,减少2个地级市,新设立潮汕市,晋级特大城市
产品推荐
深挖凤眼果特色IP 走出基层治理新路
¥0
主动清杂物 共织“防蚊网”
¥0
顺德区开展游泳池救生员实操培训
¥0
顺德陈村接连举办多场AI专题培训
¥0
顺德首届开渔节开幕
¥0
账号登录
注册账号
|
忘记密码
社交账号登录